轴承专区
Bearings Center
321394 A轴承-SKF 321394 A轴承尺寸、图纸、价格
SKF 321394 A轴承
| 产品名称: | 321394 A轴承 | 品牌: | SKF |
|---|---|---|---|
| 类型: | SKF轴承 > 滚动轴承 > 球面滚子轴承 | ||
| 描述: | 321394 A轴承是【SKF轴承 > 滚动轴承 > 球面滚子轴承】的型号,主要用在装卸搬运机械、各类变速器、变速器、铁路车辆、轧钢机齿轮箱座、机床等的变速装置、矿山、啤酒、压路机、摩天轮等各大领域 | ||
电话/微信:138-8949-5179
SKF 321394 A轴承详细信息
321394 A轴承是【SKF轴承 > 滚动轴承 > 球面滚子轴承】的型号,主要用在装卸搬运机械、各类变速器、变速器、铁路车辆、轧钢机齿轮箱座、机床等的变速装置、矿山、啤酒、压路机、摩天轮等各大领域。
SKF 321394 A轴承详细参数
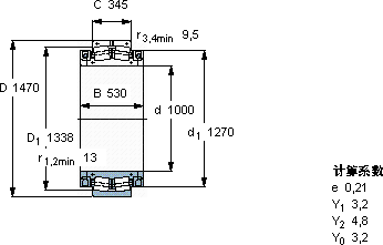
| 球面滚子轴承, 剖分式 | |||||||||
| 主要数据尺寸 | 基本负荷额定值 | 疲劳负荷限值 | 体积 | 型号 | |||||
| 动态 | 静态 | ||||||||
| d | D | B | C | C | C0 | Pu | |||
| mm | kN | kN | kg | - | |||||
| 1000 | 1470 | 530 | 345 | 14600 | 36500 | 2120 | 3000 | 321394 A | |
SKF 321394 A轴承尺寸图纸

