轴承专区
Bearings Center
MDKUSE25-3ZR轴承-INA MDKUSE25-3ZR轴承尺寸、图纸、价格
INA MDKUSE25-3ZR轴承
| 产品名称: | MDKUSE25-3ZR轴承 | 品牌: | INA |
|---|---|---|---|
| 类型: | INA轴承 > 串联直线执行器 | ||
| 描述: | MDKUSE25-3ZR轴承是【INA轴承 > 串联直线执行器】的型号,主要用在建筑机械、各类变速器、挖土机履带轮、铁路车辆、轧钢机齿轮箱座、机床等的变速装置、成形机、烟草机械、压路机、港口起重机等各大领域 | ||
电话/微信:138-8949-5179
INA MDKUSE25-3ZR轴承详细信息
MDKUSE25-3ZR轴承是【INA轴承 > 串联直线执行器】的型号,主要用在建筑机械、各类变速器、挖土机履带轮、铁路车辆、轧钢机齿轮箱座、机床等的变速装置、成形机、烟草机械、压路机、港口起重机等各大领域。
INA MDKUSE25-3ZR轴承详细参数
| 参数 | 值 | 备注 |
| H | 145 mm | |
| B | 250 mm | |
| L | 365 mm | |
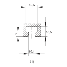
| 21) | 槽宽 10 | |
| 22) | 槽宽 8 | |
| B1 | 35 mm | 槽宽8 mm |
| B2 | 115 mm | 槽宽8 mm |
| B3 | 185 mm | 槽宽8 mm |
| B4 | 50 mm | 对直线执行器 MDKU(V)E15-3ZR:槽宽8 mm对直线执行器 MDKU(S)E25-3ZR:槽宽10 mm |
| B5 | 110 mm | 对直线执行器 MDKU(V)E15-3ZR:槽宽8 mm对直线执行器 MDKU(S)E25-3ZR:槽宽10 mm |
| B6 | 210 mm | 对直线执行器 MDKU(V)E15-3ZR:槽宽8 mm对直线执行器 MDKU(S)E25-3ZR:槽宽10 mm |
| B7 | 260 mm | |
| B8 | 10 mm | |
| B9 | 263 mm | |
| D | 115 mm | |
| D1 | 95 mm | 公差:G7 |
| D2 | 76 mm | |
| H1 | 63 mm | 公差: +/-0,5 |
| H2 | 120,5 mm | |
| H3 | 25 mm | 槽宽8 mm |
| H4 | 50 mm | 对直线执行器 MDKU(V)E15-3ZR:槽宽 5 mm对直线执行器 MDKU(S)E25-3ZR:槽宽8 mm |
| H5 | 108 mm | |
| L1 | 405 mm | |
| L4 | 115,5 mm | |
| O | M8 | |
| T | 4 mm | 公差: +0,5 |
| mLaw | 14,1 kg | 滑块的质量 |
| mtot | (Ltot - 231) x 0,0325 + 30 kg | 质量 |
| ly | 7069 cm^4 | 惯性矩 |
| lz | 899 cm^4 | 惯性矩 |
| CI | 73900 N | 基本额定载荷:注意:此数值只适用于 Lh 寿命的计算。 |
| C0 I | 268000 N | 基本额定载荷:注意:此数值只适用于 Lh 寿命的计算。 |
| M0x | 9500 Nm | 直线导轨系统的许用静扭矩这些数值是单一载荷,当执行器的下部完全被支承时使用。当承受联;合载荷时,这些值必须减小。关于导轨系统的设计标准,见PF1样本。 |
| M0y | 11000 Nm | 直线导轨系统的许用静扭矩这些数值是单一载荷,当执行器的下部完全被支承时使用。当承受联;合载荷时,这些值必须减小。关于导轨系统的设计标准,见PF1样本。 |
| M0z | 10000 Nm | 直线导轨系统的许用静扭矩这些数值是单一载荷,当执行器的下部完全被支承时使用。当承受联;合载荷时,这些值必须减小。关于导轨系统的设计标准,见PF1样本。 |
| CII | 60400 N | 基本额定载荷:注意:此数值只适用于 Lh 寿命的计算。 |
| C0 II | 172000 N | 基本额定载荷:注意:此数值只适用于 Lh 寿命的计算。 |
| CIII | 56200 N | 基本额定载荷:注意:此数值只适用于 Lh 寿命的计算。 |
| C0 III | 184000 N | 基本额定载荷:注意:此数值只适用于 Lh 寿命的计算。 |
| 50AT10 | 齿形带 | |
| 5640 N | 齿形带的许用工作载荷 | |
| 207 Nm | 最大驱动力矩 | |
| 0,95 kg/m | 齿形带的质量 | |
| 230 mm/Umdr | 进给量(mm/转) | |
| 35,2 x 10^-4 kg x m^2 | 两个齿轮的质量惯性矩 | |
| L2 = 总行程 + L1 + 12L tot = 总行程 + L1 + 12 x L4 总行程= 有效行程 + 2 x S注意:S 指适合于特殊应用的安全范围,应该至少为85 mm;总行程单位为mm。最大单根支承轨长度 L2 = 6000 mm。 |
INA MDKUSE25-3ZR轴承尺寸图纸

