轴承专区
Bearings Center
KGX20轴承-INA KGX20轴承尺寸、图纸、价格
INA KGX20轴承
| 产品名称: | KGX20轴承 | 品牌: | INA |
|---|---|---|---|
| 类型: | INA轴承 > 直线球轴承及轴承座单元 | ||
| 描述: | KGX20轴承是【INA轴承 > 直线球轴承及轴承座单元】的型号,主要用在铁路车辆、燃料喷射泵、变速器、齿轮减速装置、轧钢机辊道子、起重机吊钩、冶炼厂、破碎、强夯机、正面吊等各大领域 | ||
电话/微信:138-8949-5179
INA KGX20轴承详细信息
KGX20轴承是【INA轴承 > 直线球轴承及轴承座单元】的型号,主要用在铁路车辆、燃料喷射泵、变速器、齿轮减速装置、轧钢机辊道子、起重机吊钩、冶炼厂、破碎、强夯机、正面吊等各大领域。
INA KGX20轴承详细参数
| 参数 | 值 | 备注 |
| A | 4 inch | |
| A | 101,6 mm | |
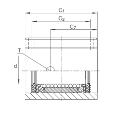
| C1 | 3,625 inch | |
| C1 | 92,075 mm | |
| H | 2,813 inch | |
| H | 71,4502 mm | |
| d | 1 1/4 inch | 轴的直径 |
| d | 31,75 mm | 轴的直径 |
| A1 | 3,5 inch | 公差:+/-0,01安装尺寸 |
| A4 | 3 inch | |
| A5 | 2 inch | 公差: +/-0,001 |
| C2 | 2 inch | 公差:+/-0,01安装尺寸 |
| C7 | 2,43 inch | |
| H2 | 1,5 inch | 公差: +/-0,001 |
| H3 | 1,5 inch | |
| H4 | 2,5 inch | |
| H8 | 0,437 inch | |
| K3 | 0,218 inch | 安装尺寸 |
| T | 1/4 -28 inch | |
| m | 2,43 lbs. | 质量 |
| C | 1490 lbf | 在主载荷方向的基本额定载荷;基本额定载荷仅适用于淬硬(670+170 HV)及磨削过的作为滚道的轴根据 ISO/CD 14 728-1 的基本额定载荷(最大值) |
| C | 6628 N | 在主载荷方向的基本额定载荷;基本额定载荷仅适用于淬硬(670+170 HV)及磨削过的作为滚道的轴根据 ISO/CD 14 728-1 的基本额定载荷(最大值) |
| C0 | 1190 lbf | 在主载荷方向的基本额定载荷;基本额定载荷仅适用于淬硬(670+170 HV)及磨削过的作为滚道的轴根据 ISO/CD 14 728-1 的基本额定载荷(最大值) |
| C0 | 5293 N | 在主载荷方向的基本额定载荷;基本额定载荷仅适用于淬硬(670+170 HV)及磨削过的作为滚道的轴根据 ISO/CD 14 728-1 的基本额定载荷(最大值) |
INA KGX20轴承尺寸图纸

