轴承专区
Bearings Center
GE60-AX轴承-INA GE60-AX轴承尺寸、图纸、价格
INA GE60-AX轴承
| 产品名称: | GE60-AX轴承 | 品牌: | INA |
|---|---|---|---|
| 类型: | INA轴承 > 推力关节轴承 | ||
| 描述: | GE60-AX轴承是【INA轴承 > 推力关节轴承】的型号,主要用在后轮、燃汽轮机、挖土机履带轮、后轮、轧钢机辊道子、石油钻机、水力发电机、电子、给料机械、焊接机器人等各大领域 | ||
电话/微信:138-8949-5179
INA GE60-AX轴承详细信息
GE60-AX轴承是【INA轴承 > 推力关节轴承】的型号,主要用在后轮、燃汽轮机、挖土机履带轮、后轮、轧钢机辊道子、石油钻机、水力发电机、电子、给料机械、焊接机器人等各大领域。
INA GE60-AX轴承详细参数
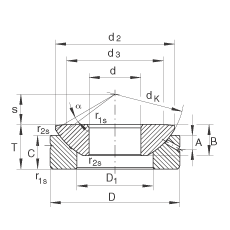
| 参数 | 值 | 备注 |
| d | 60 mm | 公差: 0 / -0,015 |
| D | 150 mm | 公差: 0 / -0,018 |
| T | 45 mm | 公差: 0 / -0,4 |
| A | 12,5 mm | |
| B | 37 mm | 公差: 0 / -0,3 |
| C | 33 mm | 公差: 0 / -0,3 |
| D1 | 86 mm | |
| Da min | 92 mm | |
| d3 | 108 mm | |
| da max | 108 mm | |
| dK | 160 mm | |
| r1s min | 1 mm | 倒角尺寸 |
| r2s min | 0,3 mm | 倒角尺寸 |
| s | 35 mm | |
| α | 7 ° | |
| m | 4,7 kg | 质量 |
| Ca | 735000 N | 基本额定动载荷,轴向 |
| C0a | 3670000 N | 基本额定静载荷,轴向 |
INA GE60-AX轴承尺寸图纸

