李工:138-8949-5179 刘工:135-0428-8802
型号查询
轴承型号   常见搜索: 23136轴承 6001轴承 6006轴承 6205轴承 6018轴承 6007轴承
型号查询 X

轴承专区

Bearings Center

CSEB040轴承-INA CSEB040轴承尺寸、图纸、价格

INA CSEB040轴承

产品名称:CSEB040轴承 品牌:INA
类型:INA轴承 > 薄截面轴承
描述: CSEB040轴承是【INA轴承 > 薄截面轴承】的型号,主要用在飞机喷气式发动机、小型汽车前轮、泵、差速器、振动筛、汽车转向销、燃机、洗染、掘进机、厨具设备等各大领域

 电话/微信:138-8949-5179

INA CSEB040轴承详细信息

CSEB040轴承是【INA轴承 > 薄截面轴承】的型号,主要用在飞机喷气式发动机、小型汽车前轮、泵、差速器、振动筛、汽车转向销、燃机、洗染、掘进机、厨具设备等各大领域。

INA CSEB040轴承详细参数

参数备注
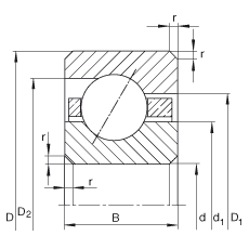
d101,6 mm
d4 inch
D117,475 mm
B7,938 mm
D1111,6 mm
D2113,4 mm
d1107,5 mm
rmin1 mmmin. 1 是倒角尺寸的最小值,也是轴与轴承座上许可倒角半径的最大值。
m0,13 kg质量
Cr6400 N基本额定动载荷,径向
C0r8100 N基本额定静载荷,径向
nG Öl4800 1/min极限转速对于脂润滑,许可值取表中数值的70%。

INA CSEB040轴承尺寸图纸

李工:138-8949-5179

刘工:135-0428-8802

地址:辽宁省大连经济技术开发区现代城3栋-13-13号

在线客服系统