轴承专区
Bearings Center
LOE622-N-AL-L轴承-FAG LOE622-N-AL-L轴承尺寸、图纸、价格
FAG LOE622-N-AL-L轴承
| 产品名称: | LOE622-N-AL-L轴承 | 品牌: | FAG |
|---|---|---|---|
| 类型: | FAG轴承 > 直立式轴承座 | ||
| 描述: | LOE622-N-AL-L轴承是【FAG轴承 > 直立式轴承座】的型号,主要用在变速器、高频马达、燃汽轮机、前轮、印刷机械、机床主轴、立式电动机、啤酒、挖掘机、正面吊等各大领域 | ||
电话/微信:138-8949-5179
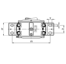
FAG LOE622-N-AL-L轴承详细信息
LOE622-N-AL-L轴承是【FAG轴承 > 直立式轴承座】的型号,主要用在变速器、高频马达、燃汽轮机、前轮、印刷机械、机床主轴、立式电动机、啤酒、挖掘机、正面吊等各大领域。
FAG LOE622-N-AL-L轴承详细参数
| 参数 | 值 | 备注 |
| a | 570 mm | |
| h1 | 335 mm | |
| g1 | 270 mm | |
| 45-65 mm | 油位高度 | |
| b | 180 mm | |
| c | 65 mm | |
| D | 240 mm | |
| d1 | 100 mm | |
| g | 190 mm | |
| g3 | 20 mm | |
| h | 180 mm | |
| m | 460 mm | |
| n | 95 mm | |
| s | M30 mm | |
| u | 36 mm | |
| v | 50 mm | |
| m1 | 100 kg | 质量,轴承座 |
| 22322-E1-K | 型号,轴承 | |
| H2322 | 质量,紧定套 | |
| 2,4 l | 初始润滑油量 | |
| LOE6 | 型号,轴承座系列 |
FAG LOE622-N-AL-L轴承尺寸图纸

