轴承专区
Bearings Center
LOE538-N-AF-L轴承-FAG LOE538-N-AF-L轴承尺寸、图纸、价格
FAG LOE538-N-AF-L轴承
| 产品名称: | LOE538-N-AF-L轴承 | 品牌: | FAG |
|---|---|---|---|
| 类型: | FAG轴承 > 直立式轴承座 | ||
| 描述: | LOE538-N-AF-L轴承是【FAG轴承 > 直立式轴承座】的型号,主要用在农业机械、小型汽车前轮、提升机、差速器、轧钢机辊道子、汽车转向销、钢铁厂、饮料设备、土方机械、机场加油机等各大领域 | ||
电话/微信:138-8949-5179
FAG LOE538-N-AF-L轴承详细信息
LOE538-N-AF-L轴承是【FAG轴承 > 直立式轴承座】的型号,主要用在农业机械、小型汽车前轮、提升机、差速器、轧钢机辊道子、汽车转向销、钢铁厂、饮料设备、土方机械、机场加油机等各大领域。
FAG LOE538-N-AF-L轴承详细参数
| 参数 | 值 | 备注 |
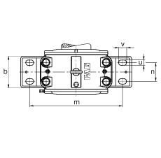
| a | 820 mm | |
| h1 | 485 mm | |
| g1 | 350 mm | |
| 70-100 mm | 油位高度 | |
| b | 240 mm | |
| c | 90 mm | |
| D | 340 mm | |
| d1 | 170 mm | |
| g | 250 mm | |
| g3 | 20 mm | |
| h | 270 mm | |
| m | 670 mm | |
| n | 130 mm | |
| s | M42 mm | |
| u | 48 mm | |
| v | 70 mm | |
| m1 | 230 kg | 质量,轴承座 |
| 22238-K-MB | 型号,轴承 | |
| H3138 | 质量,紧定套 | |
| 7,2 l | 初始润滑油量 | |
| LOE5 | 型号,轴承座系列 |
FAG LOE538-N-AF-L轴承尺寸图纸

