轴承专区
Bearings Center
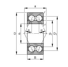
3307-B-TVH轴承-FAG 3307-B-TVH轴承尺寸、图纸、价格
FAG 3307-B-TVH轴承
| 产品名称: | 3307-B-TVH轴承 | 品牌: | FAG |
|---|---|---|---|
| 类型: | FAG轴承 > 角接触球轴承 | ||
| 描述: | 3307-B-TVH轴承是【FAG轴承 > 角接触球轴承】的型号,主要用在农业机械、空气压缩机、泵、大型农业机械、振动筛、汽车转向销、钢铁厂、医药设备、掘进机、刮泥机等各大领域 | ||
电话/微信:138-8949-5179
FAG 3307-B-TVH轴承详细信息
3307-B-TVH轴承是【FAG轴承 > 角接触球轴承】的型号,主要用在农业机械、空气压缩机、泵、大型农业机械、振动筛、汽车转向销、钢铁厂、医药设备、掘进机、刮泥机等各大领域。
FAG 3307-B-TVH轴承详细参数
| 参数 | 值 | 备注 |
| d | 35 mm | |
| D | 80 mm | |
| B | 34,9 mm | |
| a | 41 mm | |
| D1 | 65,5 mm | |
| D2 | 67,6 mm | |
| Da max | 71 mm | |
| d1 | 49,3 mm | |
| da min | 44 mm | |
| ra max | 1,5 mm | |
| rmin | 1,5 mm | |
| m | 0,657 kg | 质量 |
| Cr | 51000 N | 基本额定动载荷,径向 |
| C0r | 34500 N | 基本额定静载荷,径向 |
| nG | 7500 1/min | 极限转速 |
| nB | 7400 1/min | 参考速度 |
| Cur | 1650 N | 疲劳极限载荷,径向 |
FAG 3307-B-TVH轴承尺寸图纸

