李工:138-8949-5179 刘工:135-0428-8802
型号查询
轴承型号   常见搜索: 2025轴承 71913轴承 6012轴承 6002轴承 2026轴承 6011轴承
型号查询 X

轴承专区

Bearings Center

321528轴承-SKF 321528轴承尺寸、图纸、价格

SKF 321528轴承

产品名称:321528轴承 品牌:SKF
类型:SKF轴承 > 滚动轴承 > 球面滚子轴承
描述:321528轴承是【SKF轴承 > 滚动轴承 > 球面滚子轴承】的型号,主要用在建筑机械、罗茨鼓风机、减速装置、建筑机械、减速装置、制铁制钢机械、成形机、制鞋、堆取料机、泥炮等各大领域

 电话/微信:138-8949-5179

SKF 321528轴承详细信息

321528轴承是【SKF轴承 > 滚动轴承 > 球面滚子轴承】的型号,主要用在建筑机械、罗茨鼓风机、减速装置、建筑机械、减速装置、制铁制钢机械、成形机、制鞋、堆取料机、泥炮等各大领域。

SKF 321528轴承详细参数

球面滚子轴承, 剖分式
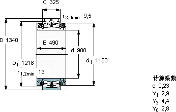
主要数据尺寸基本负荷额定值疲劳负荷限值体积型号
动态静态
dDBCCC0Pu
mmkNkNkg-
9001340490325124003000018001800321528

SKF 321528轴承尺寸图纸

李工:138-8949-5179

刘工:135-0428-8802

地址:辽宁省大连经济技术开发区现代城3栋-13-13号

在线客服系统