轴承专区
Bearings Center
BR170轴承-NTN BR170轴承尺寸、图纸、价格
NTN BR170轴承
| 产品名称: | BR170轴承 | 品牌: | NTN |
|---|---|---|---|
| 类型: | NTN轴承 > 滚针轴承 > 滚针轴承组件 | ||
| 描述: | BR170轴承是【NTN轴承 > 滚针轴承 > 滚针轴承组件】的型号,主要用在仪表、印刷机械、发电机、轧钢机辊颈、破碎机、石油钻机转环、碾煤机、啤酒、轻工机械、钢包回转台等各大领域 | ||
电话/微信:138-8949-5179
NTN BR170轴承详细信息
BR170轴承是【NTN轴承 > 滚针轴承 > 滚针轴承组件】的型号,主要用在仪表、印刷机械、发电机、轧钢机辊颈、破碎机、石油钻机转环、碾煤机、啤酒、轻工机械、钢包回转台等各大领域。
NTN BR170轴承详细参数
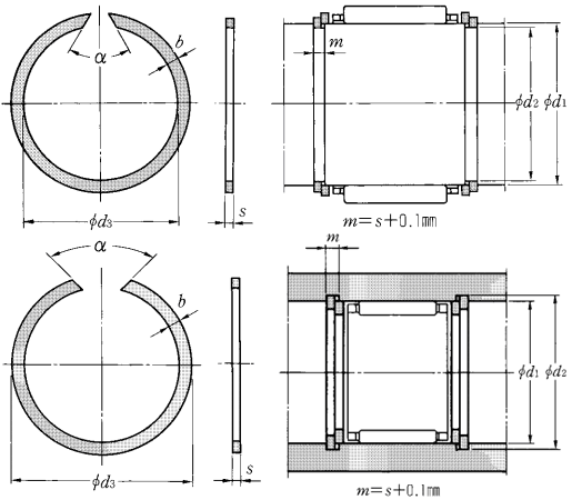
| 型号 | BR170 |
| d1 | 170 |
| d3 | 174 |
| b | 4 |
| s | 2.5 |
| d2 | 173 |
| r/min |
NTN BR170轴承尺寸图纸

