李工:138-8949-5179 刘工:135-0428-8802
型号查询
轴承型号   常见搜索: 6020轴承 32313轴承 6001轴承 6013轴承 6011轴承 2026轴承
型号查询 X

轴承专区

Bearings Center

RUKS45-D-A-SR轴承-INA RUKS45-D-A-SR轴承尺寸、图纸、价格

INA RUKS45-D-A-SR轴承

产品名称:RUKS45-D-A-SR轴承 品牌:INA
类型:INA轴承 > 夹紧单元
描述: RUKS45-D-A-SR轴承是【INA轴承 > 夹紧单元】的型号,主要用在建筑机械、高频马达、燃汽轮机、前轮、减速装置、机床主轴、成形机、陶瓷机械、挖掘机、泥炮等各大领域

 电话/微信:138-8949-5179

INA RUKS45-D-A-SR轴承详细信息

RUKS45-D-A-SR轴承是【INA轴承 > 夹紧单元】的型号,主要用在建筑机械、高频马达、燃汽轮机、前轮、减速装置、机床主轴、成形机、陶瓷机械、挖掘机、泥炮等各大领域。

INA RUKS45-D-A-SR轴承详细参数

参数备注
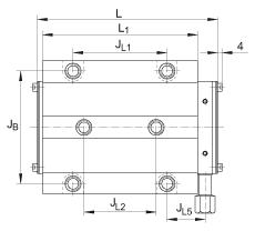
H60 mm
B118 mm
L156 mm
1)侧面进油; 发货时包括带有M12×1.5 螺纹的连接管。
A322 mm
G2M12根据 DIN ISO 4762-12.9的螺钉最大锁紧力矩 [MA](Nm):M10,M12 = 83
H18,7 mm
H327 mm
H915,6 mm
JB100 mm
JL180 mm
JL260 mm
JL533,5 mm
K3M10根据 DIN ISO 4762-12.9的螺钉最大锁紧力矩 [MA](Nm):M5 = 10M6 = 17M8 = 41M10 = 83M12 = 140M14 = 220M16 = 340
L1134 mm
N26 mm周边结构润滑孔的最大直径。
T715 mm
mRUKS4,5 kg夹紧单元的质量
适合于导轨 TSX45-E

INA RUKS45-D-A-SR轴承尺寸图纸

李工:138-8949-5179

刘工:135-0428-8802

地址:辽宁省大连经济技术开发区现代城3栋-13-13号

在线客服系统