轴承专区
Bearings Center
RUE25-D-FE轴承-INA RUE25-D-FE轴承尺寸、图纸、价格
INA RUE25-D-FE轴承
| 产品名称: | RUE25-D-FE轴承 | 品牌: | INA |
|---|---|---|---|
| 类型: | INA轴承 > 滚子单轨引导系统 | ||
| 描述: | RUE25-D-FE轴承是【INA轴承 > 滚子单轨引导系统】的型号,主要用在仪表、差速器小齿轮轴、压缩机、小齿轮轴、印刷机械、机床等的变速装置、碾煤机、电子、压路机、钢包回转台等各大领域 | ||
电话/微信:138-8949-5179
INA RUE25-D-FE轴承详细信息
RUE25-D-FE轴承是【INA轴承 > 滚子单轨引导系统】的型号,主要用在仪表、差速器小齿轮轴、压缩机、小齿轮轴、印刷机械、机床等的变速装置、碾煤机、电子、压路机、钢包回转台等各大领域。
INA RUE25-D-FE轴承详细参数
| 参数 | 值 | 备注 |
| H | 36 mm | |
| B | 70 mm | |
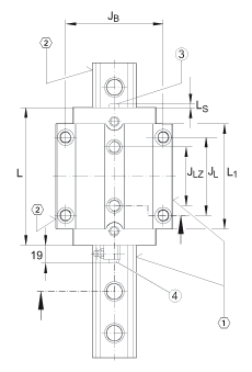
| L | 91 mm | 因为上部润滑孔的原因,滑块需要被覆盖的最小长度。 |
| 1) | 定位面 | |
| 2) | 标记 | |
| 3) | 螺旋塞最大 MA =2.5Nm | |
| 4) | 拧紧力矩最大为 MA = 2.5Nm | |
| A1 | 23,5 mm | |
| A3 | 7,5 mm | |
| aL max | 23 mm | a L 和 a R 取决于导轨的长度 l max |
| aL min | 20 mm | a L 和 a R 取决于导轨的长度 l max |
| aR max | 23 mm | a L 和 a R 取决于导轨的长度 l max |
| aR min | 20 mm | a L 和 a R 取决于导轨的长度 l max |
| b | 23 mm | 公差: -0,005 / -0,035 |
| G2 | M8 | 根据 DIN ISO 4762-12.9的螺钉最大锁紧力矩 [MA](Nm):M6 = 10M8 = 24M10 = 41M12 = 83M14 = 140M16 = 220M20 = 470 |
| H1 | 6,5 mm | |
| H4 | 17,5 mm | |
| H5 | 7,5 mm | |
| h | 22,3 mm | |
| h1 | 11,8 mm | 公差: +/-0,5 |
| JB | 57 mm | |
| JL | 45 mm | |
| JL5 | 14,5 mm | 周围结构上润滑孔的位置。 |
| JLZ | 40 mm | |
| jL | 30 mm | |
| K1 | M6 | 根据 DIN ISO 4762-12.9的螺钉最大锁紧力矩 [MA](Nm):M6 = 17M8 = 41M12 = 140M14 = 220M16 = 340M24 = 1100 |
| K3 | M6 | 根据 DIN ISO 4762-12.9的螺钉最大锁紧力矩 [MA](Nm):M5 = 10M6 = 17M8 = 41M10 = 83M12 = 140M14 = 220M16 = 340 |
| K6 | M6 | 根据 DIN ISO 7984-8.8的螺钉最大锁紧力矩 [MA](Nm):M6 = 10M8 = 24M10 = 48M12 = 83M14 = 130M16 = 220 |
| L1 | 65,6 mm | |
| LS | 4 mm | |
| lmax | 1980 mm | 单根导轨的最大长度;更长的导轨可以分成几段供货,并且相应地标注。根据合同约定,单根导轨最大长度可达到6米。 |
| N2 | 3 mm | 周边结构润滑孔的最大直径。 |
| N3 | M6 | 最大螺钉深度 6 mm |
| O | 10x1,5 mm | DIN 3771 |
| T5 | 10 mm | |
| T6 | 8,65 mm | |
| mW | 0,7 kg | 滑块的质量 |
| mS | 3,3 kg/m | 导轨的质量 |
| C | 28000 N | 基本额定动载荷 |
| C0 | 65000 N | 基本额定静载荷 |
| M0x | 350 Nm | 绕 X 轴的额定静扭矩 |
| M0y | 760 Nm | 绕 Y 轴的额定静扭矩 |
| M0z | 680 Nm | 绕 Z 轴的额定静扭矩 |
| 带脂润滑的循环滚子单元 |
INA RUE25-D-FE轴承尺寸图纸

