李工:138-8949-5179 刘工:135-0428-8802
型号查询
轴承型号   常见搜索: 6900轴承 6028轴承 6011轴承 688a轴承 71913轴承 6014轴承
型号查询 X

轴承专区

Bearings Center

KWSE25-HL轴承-INA KWSE25-HL轴承尺寸、图纸、价格

INA KWSE25-HL轴承

产品名称:KWSE25-HL轴承 品牌:INA
类型:INA轴承 > 滑块
描述: KWSE25-HL轴承是【INA轴承 > 滑块】的型号,主要用在电气装置部件、燃汽轮机、挖土机履带轮、后轮、振动筛、石油钻机、船舶用螺旋桨轴、玩具、解体机、风力发电设备等各大领域

 电话/微信:138-8949-5179

INA KWSE25-HL轴承详细信息

KWSE25-HL轴承是【INA轴承 > 滑块】的型号,主要用在电气装置部件、燃汽轮机、挖土机履带轮、后轮、振动筛、石油钻机、船舶用螺旋桨轴、玩具、解体机、风力发电设备等各大领域。

INA KWSE25-HL轴承详细参数

参数备注
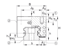
H40 mm
B48 mm
L104,3 mm用于密封润滑孔 N2 的最小覆盖长度
1)定位面
2)标记
A112,5 mm
A26,5 mm
A310 mm
aL max53 mma L 和 a R 取决于导轨的长度 l max
aL min20 mma L 和 a R 取决于导轨的长度 l max
aR max53 mma L 和 a R 取决于导轨的长度 l max
aR min20 mma L 和 a R 取决于导轨的长度 l max
b23 mm公差: -0,005 / -0,03
G2M6根据 DIN ISO 4762-12.9的螺钉最大锁紧力矩 [MA](Nm):M5 = 10M6 = 17M8 = 41M10 = 83M12 = 140
H15,2 mm
H55 mm
h21,7 mm
h111,7 mm
JB35 mm
JL50 mm
JL521,45 mm周围结构上润滑孔的位置。
jL60 mm
K1M6根据 DIN ISO 4762-12.9的螺钉最大锁紧力矩 [MA](Nm):M5 = 10M6 = 17M8 = 41M10 = 83M12 = 140M14 = 220M16 = 340
L182,9 mm
lmax1980 mm单根导轨的最大长度;更长的导轨可以分成几段供货,并且相应地标注。根据合同约定,单根导轨最大长度可达到6米。
N23 mm周边结构润滑孔的最大直径。
O3x1,5 mmDIN 3771
T510 mm
mW0,7 kg滑块的质量
mS3,15 kg/m导轨的质量
CI35300 N载荷方向 I:压缩载荷
C0 I93700 N载荷方向 I:压缩载荷
CII28900 N载荷方向 II:拉伸载荷
C0 II59800 N载荷方向 II:拉伸载荷
CIII24700 N载荷方向 III:横向载荷
C0 III64000 N载荷方向 III:横向载荷
M0x736 Nm绕 X 轴的额定静扭矩
M0y903 Nm绕 Y 轴的额定静扭矩
M0z823 Nm绕 Z 轴的额定静扭矩

INA KWSE25-HL轴承尺寸图纸

李工:138-8949-5179

刘工:135-0428-8802

地址:辽宁省大连经济技术开发区现代城3栋-13-13号

在线客服系统