轴承专区
Bearings Center
KUSE35-H轴承-INA KUSE35-H轴承尺寸、图纸、价格
INA KUSE35-H轴承
| 产品名称: | KUSE35-H轴承 | 品牌: | INA |
|---|---|---|---|
| 类型: | INA轴承 > 球单轨引导系统 | ||
| 描述: | KUSE35-H轴承是【INA轴承 > 球单轨引导系统】的型号,主要用在后轮、燃汽轮机、挖土机履带轮、后轮、造纸机械、起重机吊钩、水力发电机、塑料、强夯机、焊接机器人等各大领域 | ||
电话/微信:138-8949-5179
INA KUSE35-H轴承详细信息
KUSE35-H轴承是【INA轴承 > 球单轨引导系统】的型号,主要用在后轮、燃汽轮机、挖土机履带轮、后轮、造纸机械、起重机吊钩、水力发电机、塑料、强夯机、焊接机器人等各大领域。
INA KUSE35-H轴承详细参数
| 参数 | 值 | 备注 |
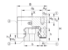
| H | 55 mm | |
| B | 70 mm | |
| L | 107,1 mm | 用于密封润滑孔 N2 的最小覆盖长度 |
| 1) | 定位面 | |
| 2) | 标记 | |
| A1 | 18 mm | |
| A2 | 10 mm | |
| A3 | 14,2 mm | |
| aL max | 71 mm | a L 和 a R 取决于导轨的长度 l max |
| aL min | 20 mm | a L 和 a R 取决于导轨的长度 l max |
| aR max | 71 mm | a L 和 a R 取决于导轨的长度 l max |
| aR min | 20 mm | a L 和 a R 取决于导轨的长度 l max |
| b | 34 mm | 公差: -0,005 / -0,03 |
| G2 | M8 | 根据 DIN ISO 4762-12.9的螺钉最大锁紧力矩 [MA](Nm):M5 = 10M6 = 17M8 = 41M10 = 83M12 = 140 |
| H1 | 6,6 mm | |
| H5 | 6,5 mm | |
| h | 29,7 mm | |
| h1 | 18,2 mm | |
| JB | 50 mm | |
| JL | 50 mm | |
| JL5 | 17,65 mm | 周围结构上润滑孔的位置。 |
| jL | 80 mm | |
| K1 | M8 | 根据 DIN ISO 4762-12.9的螺钉最大锁紧力矩 [MA](Nm):M5 = 10M6 = 17M8 = 41M10 = 83M12 = 140M14 = 220M16 = 340 |
| L1 | 77,7 mm | |
| lmax | 2960 mm | 单根导轨的最大长度;更长的导轨可以分成几段供货,并且相应地标注。根据合同约定,单根导轨最大长度可达到6米。 |
| N2 | 4,5 mm | 周边结构润滑孔的最大直径。 |
| O | 4,5x1,5 mm | DIN 3771 |
| T5 | 14 mm | |
| mW | 1,3 kg | 滑块的质量 |
| mS | 6,5 kg/m | 导轨的质量 |
| CI | 55000 N | 载荷方向 I:压缩载荷 |
| C0 I | 102000 N | 载荷方向 I:压缩载荷 |
| CII | 45000 N | 载荷方向 II:拉伸载荷 |
| C0 II | 79000 N | 载荷方向 II:拉伸载荷 |
| CIII | 42000 N | 载荷方向 III:横向载荷 |
| C0 III | 85000 N | 载荷方向 III:横向载荷 |
| M0x | 1454 Nm | 绕 X 轴的额定静扭矩 |
| M0y | 1173 Nm | 绕 Y 轴的额定静扭矩 |
| M0z | 1069 Nm | 绕 Z 轴的额定静扭矩 |
INA KUSE35-H轴承尺寸图纸

