轴承专区
Bearings Center
KRE32-PP轴承-INA KRE32-PP轴承尺寸、图纸、价格
INA KRE32-PP轴承
| 产品名称: | KRE32-PP轴承 | 品牌: | INA |
|---|---|---|---|
| 类型: | INA轴承 > 螺栓型滚轮 | ||
| 描述: | KRE32-PP轴承是【INA轴承 > 螺栓型滚轮】的型号,主要用在电气装置部件、燃汽轮机、压缩机、后轮、铁路车辆车轴、石油钻机、船舶用螺旋桨轴、制鞋、给料机械、风力发电设备等各大领域 | ||
电话/微信:138-8949-5179
INA KRE32-PP轴承详细信息
KRE32-PP轴承是【INA轴承 > 螺栓型滚轮】的型号,主要用在电气装置部件、燃汽轮机、压缩机、后轮、铁路车辆车轴、石油钻机、船舶用螺旋桨轴、制鞋、给料机械、风力发电设备等各大领域。
INA KRE32-PP轴承详细参数
| 参数 | 值 | 备注 |
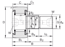
| D | 32 mm | |
| de | 15 mm | 偏心套公差:h9 |
| B | 40 mm | |
| B1 max | 15,2 mm | |
| B2 | 25 mm | |
| B3 | 6 mm | |
| Be | 11 mm | 偏心套 |
| C | 14 mm | |
| C1 | 0,6 mm | |
| d1 | 12 mm | 公差:h7 |
| d2 | 23 mm | |
| d3 | 3 mm | |
| e | 0,5 mm | 偏心套 |
| G | M12x1,5 | |
| IG | 13 mm | |
| rmin | 0,6 mm | |
| W | 6 mm | 内六角槽的公称尺寸 |
| m | 104 g | 质量 |
| MA | 22 Nm | 螺母的锁紧力矩 |
| Cr w | 7100 N | 滚轮的有效额定动载荷(径向) |
| C0r w | 9200 N | 滚轮的有效额定静载荷(径向) |
| Cur w | 1290 N | 疲劳极限载荷 |
| nD G | 5500 1/min | 转速(脂润滑下连续运转) |
| NIPA1X4,5 | 紧配合润滑嘴轻压配合润滑油嘴松散提供。只能;使用所提供的润滑油嘴。 |
INA KRE32-PP轴承尺寸图纸

