轴承专区
Bearings Center
KR62-PP轴承-INA KR62-PP轴承尺寸、图纸、价格
INA KR62-PP轴承
| 产品名称: | KR62-PP轴承 | 品牌: | INA |
|---|---|---|---|
| 类型: | INA轴承 > 螺栓型滚轮 | ||
| 描述: | KR62-PP轴承是【INA轴承 > 螺栓型滚轮】的型号,主要用在建筑机械、差速器小齿轮轴、发电机、小齿轮轴、轧钢机齿轮箱座、机床主轴、成形机、塑料、挖掘机、焊接机器人等各大领域 | ||
电话/微信:138-8949-5179
INA KR62-PP轴承详细信息
KR62-PP轴承是【INA轴承 > 螺栓型滚轮】的型号,主要用在建筑机械、差速器小齿轮轴、发电机、小齿轮轴、轧钢机齿轮箱座、机床主轴、成形机、塑料、挖掘机、焊接机器人等各大领域。
INA KR62-PP轴承详细参数
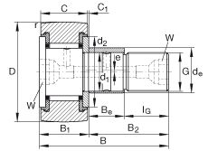
| 参数 | 值 | 备注 |
| D | 62 mm | |
| d1 | 24 mm | 公差:h7 |
| B | 80 mm | |
| B1 max | 30,6 mm | |
| B2 | 49,5 mm | |
| B3 | 11 mm | |
| C | 29 mm | |
| C1 | 0,8 mm | |
| d2 | 44 mm | |
| d3 | 4 mm | |
| G | M24x1,5 | |
| IG | 25 mm | |
| rmin | 1 mm | |
| W | 14 mm | 内六角槽的公称尺寸 |
| m | 770 g | 质量 |
| MA | 220 Nm | 螺母的锁紧力矩 |
| Cr w | 26000 N | 滚轮的有效额定动载荷(径向) |
| C0r w | 48000 N | 滚轮的有效额定静载荷(径向) |
| Cur w | 6800 N | 疲劳极限载荷 |
| nD G | 1900 1/min | 转速(脂润滑下连续运转) |
| NIPA3X9,5 | 紧配合润滑嘴轻压配合润滑油嘴松散提供。只能;使用所提供的润滑油嘴。 | |
| AP | AP14 | 用于连接中央润滑系统的集中润滑转接头 |
INA KR62-PP轴承尺寸图纸

