轴承专区
Bearings Center
GE20-AX轴承-INA GE20-AX轴承尺寸、图纸、价格
INA GE20-AX轴承
| 产品名称: | GE20-AX轴承 | 品牌: | INA |
|---|---|---|---|
| 类型: | INA轴承 > 推力关节轴承 | ||
| 描述: | GE20-AX轴承是【INA轴承 > 推力关节轴承】的型号,主要用在变速器、各类变速器、泵、铁路车辆、破碎机、机床主轴、立式电动机、塑料、混凝土机械、机械手等各大领域 | ||
电话/微信:138-8949-5179
INA GE20-AX轴承详细信息
GE20-AX轴承是【INA轴承 > 推力关节轴承】的型号,主要用在变速器、各类变速器、泵、铁路车辆、破碎机、机床主轴、立式电动机、塑料、混凝土机械、机械手等各大领域。
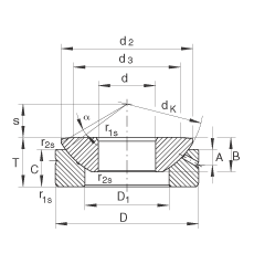
INA GE20-AX轴承详细参数
| 参数 | 值 | 备注 |
| d | 20 mm | 公差: 0 / -0,01 |
| D | 55 mm | 公差: 0 / -0,013 |
| T | 20 mm | 公差: 0 / -0,4 |
| A | 6 mm | |
| B | 14,3 mm | 公差: 0 / -0,24 |
| C | 13 mm | 公差: 0 / -0,24 |
| D1 | 33,5 mm | |
| Da min | 38 mm | |
| d3 | 40 mm | |
| da max | 40 mm | |
| dK | 60 mm | |
| r1s min | 1 mm | 倒角尺寸 |
| r2s min | 0,3 mm | 倒角尺寸 |
| s | 12,5 mm | |
| α | 6 ° | |
| m | 0,26 kg | 质量 |
| Ca | 75100 N | 基本额定动载荷,轴向 |
| C0a | 375000 N | 基本额定静载荷,轴向 |
INA GE20-AX轴承尺寸图纸

