李工:138-8949-5179 刘工:135-0428-8802
型号查询
轴承型号   常见搜索: 32313轴承 6214轴承 6001轴承 6900轴承 6004轴承 6014轴承
型号查询 X

轴承专区

Bearings Center

CSEF120轴承-INA CSEF120轴承尺寸、图纸、价格

INA CSEF120轴承

产品名称:CSEF120轴承 品牌:INA
类型:INA轴承 > 薄截面轴承
描述: CSEF120轴承是【INA轴承 > 薄截面轴承】的型号,主要用在建筑机械、差速器小齿轮轴、汽车发动机、小齿轮轴、轧钢机齿轮箱座、机床等的变速装置、成形机、啤酒、工程船舶、焊接机器人等各大领域

 电话/微信:138-8949-5179

INA CSEF120轴承详细信息

CSEF120轴承是【INA轴承 > 薄截面轴承】的型号,主要用在建筑机械、差速器小齿轮轴、汽车发动机、小齿轮轴、轧钢机齿轮箱座、机床等的变速装置、成形机、啤酒、工程船舶、焊接机器人等各大领域。

INA CSEF120轴承详细参数

参数备注
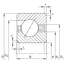
d304,8 mm
d12 inch
D342,9 mm
B19,05 mm
D1328,8 mm
D2332,8 mm
d1318,9 mm
rmin2 mmmin. 2 是倒角尺寸的最小值,也是轴与轴承座上许可倒角半径的最大值。
m2,36 kg质量
Cr37000 N基本额定动载荷,径向
C0r69000 N基本额定静载荷,径向
nG Öl1600 1/min极限转速对于脂润滑,许可值取表中数值的70%。

INA CSEF120轴承尺寸图纸

李工:138-8949-5179

刘工:135-0428-8802

地址:辽宁省大连经济技术开发区现代城3栋-13-13号

在线客服系统