轴承专区
Bearings Center
AS3552轴承-INA AS3552轴承尺寸、图纸、价格
INA AS3552轴承
| 产品名称: | AS3552轴承 | 品牌: | INA |
|---|---|---|---|
| 类型: | INA轴承 > 推力轴承垫圈 | ||
| 描述: | AS3552轴承是【INA轴承 > 推力轴承垫圈】的型号,主要用在各种产业机械、印刷机械、中型及大型电动机、轧钢机辊颈、破碎机、石油钻机转环、发电厂、饮料设备、凿岩机械、雷达等各大领域 | ||
电话/微信:138-8949-5179
INA AS3552轴承详细信息
AS3552轴承是【INA轴承 > 推力轴承垫圈】的型号,主要用在各种产业机械、印刷机械、中型及大型电动机、轧钢机辊颈、破碎机、石油钻机转环、发电厂、饮料设备、凿岩机械、雷达等各大领域。
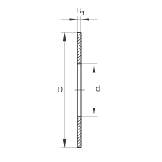
INA AS3552轴承详细参数
| 参数 | 值 | 备注 |
| d | 35 mm | |
| D | 52 mm | |
| B1 | 1 mm | |
| m | 9 g | 质量 |
INA AS3552轴承尺寸图纸

