轴承专区
Bearings Center
AS140180轴承-INA AS140180轴承尺寸、图纸、价格
INA AS140180轴承
| 产品名称: | AS140180轴承 | 品牌: | INA |
|---|---|---|---|
| 类型: | INA轴承 > 推力轴承垫圈 | ||
| 描述: | AS140180轴承是【INA轴承 > 推力轴承垫圈】的型号,主要用在通用电动机、离心分离机、变速器、变速器、印刷机械、石油钻机转环、轧钢机轧制螺杆用减速机、钟表、轻工机械、太阳能发电设备等各大领域 | ||
电话/微信:138-8949-5179
INA AS140180轴承详细信息
AS140180轴承是【INA轴承 > 推力轴承垫圈】的型号,主要用在通用电动机、离心分离机、变速器、变速器、印刷机械、石油钻机转环、轧钢机轧制螺杆用减速机、钟表、轻工机械、太阳能发电设备等各大领域。
INA AS140180轴承详细参数
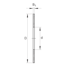
| 参数 | 值 | 备注 |
| d | 140 mm | |
| D | 180 mm | |
| B1 | 1 mm | |
| m | 79 g | 质量 |
INA AS140180轴承尺寸图纸

