李工:138-8949-5179 刘工:135-0428-8802
型号查询
轴承型号   常见搜索: 7014轴承 6010轴承 6017轴承 6019轴承 6305轴承 6015轴承
型号查询 X

轴承专区

Bearings Center

SNV072-L + 22207-E1 + DH207轴承-FAG SNV072-L + 22207-E1 + DH207轴承尺寸、图纸、价格

FAG SNV072-L + 22207-E1 + DH207轴承

产品名称:SNV072-L + 22207-E1 + DH207轴承 品牌:FAG
类型:FAG轴承 > 直立式轴承座
描述: SNV072-L + 22207-E1 + DH207轴承是【FAG轴承 > 直立式轴承座】的型号,主要用在燃汽轮机、差速器小齿轮轴、变速器、小齿轮轴、减速装置、机床等的变速装置、电机厂、纺织、工程船舶、数控设备等各大领域

 电话/微信:138-8949-5179

FAG SNV072-L + 22207-E1 + DH207轴承详细信息

SNV072-L + 22207-E1 + DH207轴承是【FAG轴承 > 直立式轴承座】的型号,主要用在燃汽轮机、差速器小齿轮轴、变速器、小齿轮轴、减速装置、机床等的变速装置、电机厂、纺织、工程船舶、数控设备等各大领域。

FAG SNV072-L + 22207-E1 + DH207轴承详细参数

参数备注
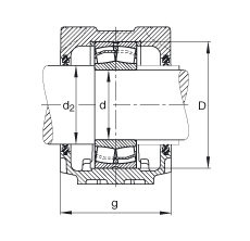
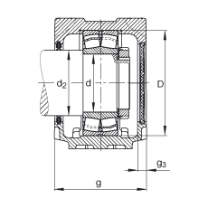
a185 mm
h197 mm
g80 mm
b52 mm
c22 mm
D72 mm
D72 mm
d35 mm
d245 mm
g310,5 mm
h50 mm
m150 mm
sM12 mm
s1/2 mm
u15 mm
v20 mm
m12 kg质量,轴承座
22207-E1型号,轴承
KM7型号,锁紧螺母
MB7型号,爪式垫圈
FRM72/5型号,定位圈
DH207型号,双唇密封
DKV072型号,端盖
SNV..Z型号,轴承座系列

FAG SNV072-L + 22207-E1 + DH207轴承尺寸图纸

李工:138-8949-5179

刘工:135-0428-8802

地址:辽宁省大连经济技术开发区现代城3栋-13-13号

在线客服系统