李工:138-8949-5179 刘工:135-0428-8802
型号查询
轴承型号   常见搜索: 6214轴承 6008轴承 nu轴承 6001轴承 6011轴承 6900轴承
型号查询 X

轴承专区

Bearings Center

NU316-E-TVP2轴承-FAG NU316-E-TVP2轴承尺寸、图纸、价格

FAG NU316-E-TVP2轴承

产品名称:NU316-E-TVP2轴承 品牌:FAG
类型:FAG轴承 > 圆柱滚子轴承
描述: NU316-E-TVP2轴承是【FAG轴承 > 圆柱滚子轴承】的型号,主要用在各种产业机械、离心分离机、变速器、变速器、印刷机械、石油钻机转环、发电厂、破碎、轻工机械、塔式车库等各大领域

 电话/微信:138-8949-5179

FAG NU316-E-TVP2轴承详细信息

NU316-E-TVP2轴承是【FAG轴承 > 圆柱滚子轴承】的型号,主要用在各种产业机械、离心分离机、变速器、变速器、印刷机械、石油钻机转环、发电厂、破碎、轻工机械、塔式车库等各大领域。

FAG NU316-E-TVP2轴承详细参数

参数备注
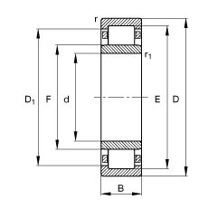
d80 mm
D170 mm
B39 mm
D1143,9 mm
Da max158 mm
da max99 mm
da min92 mm
db min105 mm
E151 mm
F101 mm
r1 min2,1 mm
ra max2,1 mm
ra1 max2,1 mm
rmin2,1 mm
s0,7 mm距离中心位置的轴向偏移
m3,96 kg质量
Cr300000 N基本额定动载荷,径向
C0r275000 N基本额定静载荷,径向
nG3800 1/min极限转速
nB4100 1/min参考速度
Cur37000 N疲劳极限载荷,径向

FAG NU316-E-TVP2轴承尺寸图纸

李工:138-8949-5179

刘工:135-0428-8802

地址:辽宁省大连经济技术开发区现代城3栋-13-13号

在线客服系统