轴承专区
Bearings Center
LOE630-N-AL-L轴承-FAG LOE630-N-AL-L轴承尺寸、图纸、价格
FAG LOE630-N-AL-L轴承
| 产品名称: | LOE630-N-AL-L轴承 | 品牌: | FAG |
|---|---|---|---|
| 类型: | FAG轴承 > 直立式轴承座 | ||
| 描述: | LOE630-N-AL-L轴承是【FAG轴承 > 直立式轴承座】的型号,主要用在通用电动机、差速器小齿轮轴、变速器、小齿轮轴、轧钢机齿轮箱座、机床主轴、轧钢机轧制螺杆用减速机、烟草机械、挖掘机、刮泥机等各大领域 | ||
电话/微信:138-8949-5179
FAG LOE630-N-AL-L轴承详细信息
LOE630-N-AL-L轴承是【FAG轴承 > 直立式轴承座】的型号,主要用在通用电动机、差速器小齿轮轴、变速器、小齿轮轴、轧钢机齿轮箱座、机床主轴、轧钢机轧制螺杆用减速机、烟草机械、挖掘机、刮泥机等各大领域。
FAG LOE630-N-AL-L轴承详细参数
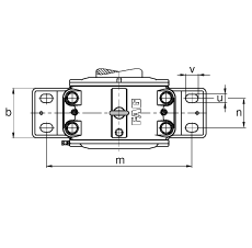
| 参数 | 值 | 备注 |
| a | 760 mm | |
| h1 | 465 mm | |
| g1 | 335 mm | |
| 75-110 mm | 油位高度 | |
| b | 200 mm | |
| c | 85 mm | |
| D | 320 mm | |
| d1 | 135 mm | |
| g | 240 mm | |
| g3 | 18 mm | |
| h | 265 mm | |
| m | 630 mm | |
| n | 125 mm | |
| s | M36 mm | |
| u | 42 mm | |
| v | 60 mm | |
| m1 | 200 kg | 质量,轴承座 |
| 22330-E1-K | 型号,轴承 | |
| H2330 | 质量,紧定套 | |
| 6,2 l | 初始润滑油量 | |
| LOE6 | 型号,轴承座系列 |
FAG LOE630-N-AL-L轴承尺寸图纸

