轴承专区
Bearings Center
LOE624-N-AL-L轴承-FAG LOE624-N-AL-L轴承尺寸、图纸、价格
FAG LOE624-N-AL-L轴承
| 产品名称: | LOE624-N-AL-L轴承 | 品牌: | FAG |
|---|---|---|---|
| 类型: | FAG轴承 > 直立式轴承座 | ||
| 描述: | LOE624-N-AL-L轴承是【FAG轴承 > 直立式轴承座】的型号,主要用在仪表、差速器小齿轮轴、泵、小齿轮轴、减速装置、机床等的变速装置、碾煤机、陶瓷机械、压路机、钢包回转台等各大领域 | ||
电话/微信:138-8949-5179
FAG LOE624-N-AL-L轴承详细信息
LOE624-N-AL-L轴承是【FAG轴承 > 直立式轴承座】的型号,主要用在仪表、差速器小齿轮轴、泵、小齿轮轴、减速装置、机床等的变速装置、碾煤机、陶瓷机械、压路机、钢包回转台等各大领域。
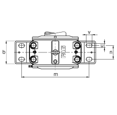
FAG LOE624-N-AL-L轴承详细参数
| 参数 | 值 | 备注 |
| a | 660 mm | |
| h1 | 390 mm | |
| g1 | 300 mm | |
| 65-90 mm | 油位高度 | |
| b | 200 mm | |
| c | 75 mm | |
| D | 260 mm | |
| d1 | 110 mm | |
| g | 210 mm | |
| g3 | 18 mm | |
| h | 220 mm | |
| m | 530 mm | |
| n | 110 mm | |
| s | M36 mm | |
| u | 42 mm | |
| v | 60 mm | |
| m1 | 130 kg | 质量,轴承座 |
| 22324-E1-K | 型号,轴承 | |
| H2324 | 质量,紧定套 | |
| 4,2 l | 初始润滑油量 | |
| LOE6 | 型号,轴承座系列 |
FAG LOE624-N-AL-L轴承尺寸图纸

