轴承专区
Bearings Center
LOE520-N-AL-L轴承-FAG LOE520-N-AL-L轴承尺寸、图纸、价格
FAG LOE520-N-AL-L轴承
| 产品名称: | LOE520-N-AL-L轴承 | 品牌: | FAG |
|---|---|---|---|
| 类型: | FAG轴承 > 直立式轴承座 | ||
| 描述: | LOE520-N-AL-L轴承是【FAG轴承 > 直立式轴承座】的型号,主要用在农业机械、机床主轴、挖土机履带轮、汽车、木工机械、耕耘机、钢铁厂、玩具、地基处理机械、太阳能发电设备等各大领域 | ||
电话/微信:138-8949-5179
FAG LOE520-N-AL-L轴承详细信息
LOE520-N-AL-L轴承是【FAG轴承 > 直立式轴承座】的型号,主要用在农业机械、机床主轴、挖土机履带轮、汽车、木工机械、耕耘机、钢铁厂、玩具、地基处理机械、太阳能发电设备等各大领域。
FAG LOE520-N-AL-L轴承详细参数
| 参数 | 值 | 备注 |
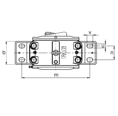
| a | 490 mm | |
| h1 | 270 mm | |
| g1 | 250 mm | |
| 50-65 mm | 油位高度 | |
| b | 160 mm | |
| c | 50 mm | |
| D | 180 mm | |
| d1 | 90 mm | |
| g | 170 mm | |
| g3 | 20 mm | |
| h | 150 mm | |
| m | 400 mm | |
| n | 80 mm | |
| s | M24 mm | |
| u | 30 mm | |
| v | 45 mm | |
| m1 | 67 kg | 质量,轴承座 |
| 22220-E1-K | 型号,轴承 | |
| H320 | 质量,紧定套 | |
| 1,7 l | 初始润滑油量 | |
| LOE5 | 型号,轴承座系列 |
FAG LOE520-N-AL-L轴承尺寸图纸

