轴承专区
Bearings Center
H39-1400-HG轴承-FAG H39-1400-HG轴承尺寸、图纸、价格
FAG H39-1400-HG轴承
| 产品名称: | H39-1400-HG轴承 | 品牌: | FAG |
|---|---|---|---|
| 类型: | FAG轴承 > 紧定套 | ||
| 描述: | H39-1400-HG轴承是【FAG轴承 > 紧定套】的型号,主要用在家用电器、燃料喷射泵、发电机、齿轮减速装置、造纸机械、起重机吊钩、塔吊、制鞋、强夯机、冶金起重机等各大领域 | ||
电话/微信:138-8949-5179
FAG H39-1400-HG轴承详细信息
H39-1400-HG轴承是【FAG轴承 > 紧定套】的型号,主要用在家用电器、燃料喷射泵、发电机、齿轮减速装置、造纸机械、起重机吊钩、塔吊、制鞋、强夯机、冶金起重机等各大领域。
FAG H39-1400-HG轴承详细参数
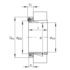
| 参数 | 值 | 备注 |
| d1H | 1320 mm | |
| Dm | 1540 mm | |
| l | 445 mm | |
| c | 110 mm | |
| c1 | 132 mm | |
| d | 1400 mm | |
| d2G | Tr1400x8 mm | |
| e | 15 mm | |
| Ro | G1/4 | |
| t | 15 mm | |
| 1320 mm | 轴 | |
| HM30/1400 | 型号,螺母 | |
| MS30/1000 | 型号,止动装置 | |
| M20X40 | 型号,六角头螺栓 | |
| m | 924 kg | 质量 |
FAG H39-1400-HG轴承尺寸图纸

