轴承专区
Bearings Center
H31-1250-HG轴承-FAG H31-1250-HG轴承尺寸、图纸、价格
FAG H31-1250-HG轴承
| 产品名称: | H31-1250-HG轴承 | 品牌: | FAG |
|---|---|---|---|
| 类型: | FAG轴承 > 紧定套 | ||
| 描述: | H31-1250-HG轴承是【FAG轴承 > 紧定套】的型号,主要用在建筑机械、差速器小齿轮轴、挖土机履带轮、小齿轮轴、轧钢机齿轮箱座、机床等的变速装置、成形机、洗染、工程船舶、焊接机器人等各大领域 | ||
电话/微信:138-8949-5179
FAG H31-1250-HG轴承详细信息
H31-1250-HG轴承是【FAG轴承 > 紧定套】的型号,主要用在建筑机械、差速器小齿轮轴、挖土机履带轮、小齿轮轴、轧钢机齿轮箱座、机床等的变速装置、成形机、洗染、工程船舶、焊接机器人等各大领域。
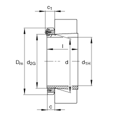
FAG H31-1250-HG轴承详细参数
| 参数 | 值 | 备注 |
| d1H | 1180 mm | |
| Dm | 1490 mm | |
| l | 677 mm | |
| c | 125 mm | |
| c1 | 150 mm | |
| d | 1250 mm | |
| d2G | Tr1250x8 mm | |
| e | 14 mm | |
| Ro | G1/4 | |
| t | 15 mm | |
| 1180 mm | 轴 | |
| HM31/1250 | 型号,螺母 | |
| MS31/1000 | 型号,止动装置 | |
| M24X45 | 型号,六角头螺栓 | |
| m | 1380 kg | 质量 |
FAG H31-1250-HG轴承尺寸图纸

