轴承专区
Bearings Center
BND3256-H-C-Y-AL-S轴承-FAG BND3256-H-C-Y-AL-S轴承尺寸、图纸、价格
FAG BND3256-H-C-Y-AL-S轴承
| 产品名称: | BND3256-H-C-Y-AL-S轴承 | 品牌: | FAG |
|---|---|---|---|
| 类型: | FAG轴承 > 直立式轴承座 | ||
| 描述: | BND3256-H-C-Y-AL-S轴承是【FAG轴承 > 直立式轴承座】的型号,主要用在通用电动机、差速器小齿轮轴、木工机械、小齿轮轴、印刷机械、机床主轴、轧钢机轧制螺杆用减速机、音像设备、挖掘机、刮泥机等各大领域 | ||
电话/微信:138-8949-5179
FAG BND3256-H-C-Y-AL-S轴承详细信息
BND3256-H-C-Y-AL-S轴承是【FAG轴承 > 直立式轴承座】的型号,主要用在通用电动机、差速器小齿轮轴、木工机械、小齿轮轴、印刷机械、机床主轴、轧钢机轧制螺杆用减速机、音像设备、挖掘机、刮泥机等各大领域。
FAG BND3256-H-C-Y-AL-S轴承详细参数
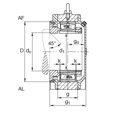
| 参数 | 值 | 备注 |
| a | 1000 mm | |
| h1 | 645 mm | |
| g1 | 343 mm | |
| b | 300 mm | |
| c | 100 mm | |
| D | 500 mm | |
| d1 | 260 mm | |
| dc | 280 mm | |
| g | 206 mm | |
| g4 | 151 mm | |
| h | 320 mm | |
| k | 4 mm | |
| m | 840 mm | |
| n | 170 mm | |
| s | M36 mm | |
| s2 | M24 mm | |
| t | 555 mm | |
| u | 42 mm | |
| v | 52 mm | |
| s2 | 8 | 数量 |
| 23256-K-MB | 型号,轴承 | |
| H2356X-HG | 质量,紧定套 | |
| m1 | 490 kg | 质量,轴承座 |
| BND | 型号,轴承座系列 |
FAG BND3256-H-C-Y-AL-S轴承尺寸图纸

