李工:138-8949-5179 刘工:135-0428-8802
型号查询
轴承型号   常见搜索: 6012轴承 6021轴承 6010轴承 6014轴承 2025轴承 *轴承
型号查询 X

轴承专区

Bearings Center

3308-B-TVH轴承-FAG 3308-B-TVH轴承尺寸、图纸、价格

FAG 3308-B-TVH轴承

产品名称:3308-B-TVH轴承 品牌:FAG
类型:FAG轴承 > 角接触球轴承
描述: 3308-B-TVH轴承是【FAG轴承 > 角接触球轴承】的型号,主要用在后轮、机床主轴、压缩机、汽车、造纸机械、耕耘机、水力发电机、塑料、地基处理机械、港口起重机等各大领域

 电话/微信:138-8949-5179

FAG 3308-B-TVH轴承详细信息

3308-B-TVH轴承是【FAG轴承 > 角接触球轴承】的型号,主要用在后轮、机床主轴、压缩机、汽车、造纸机械、耕耘机、水力发电机、塑料、地基处理机械、港口起重机等各大领域。

FAG 3308-B-TVH轴承详细参数

参数备注
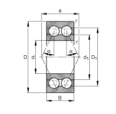
d40 mm
D90 mm
B36,5 mm
a46 mm
D174,6 mm
D277,4 mm
Da max81 mm
d155,6 mm
da min49 mm
ra max1,5 mm
rmin1,5 mm
m0,984 kg质量
Cr62000 N基本额定动载荷,径向
C0r45000 N基本额定静载荷,径向
nG6700 1/min极限转速
nB6400 1/min参考速度
Cur2500 N疲劳极限载荷,径向

FAG 3308-B-TVH轴承尺寸图纸

FAG轴承推荐

其他轴承推荐

李工:138-8949-5179

刘工:135-0428-8802

地址:辽宁省大连经济技术开发区现代城3栋-13-13号

在线客服系统