轴承专区
Bearings Center
23232-E1A-K-M + H2332轴承-FAG 23232-E1A-K-M + H2332轴承尺寸、图纸、价格
FAG 23232-E1A-K-M + H2332轴承
| 产品名称: | 23232-E1A-K-M + H2332轴承 | 品牌: | FAG |
|---|---|---|---|
| 类型: | FAG轴承 > 调心滚子轴承 | ||
| 描述: | 23232-E1A-K-M + H2332轴承是【FAG轴承 > 调心滚子轴承】的型号,主要用在家用电器、燃汽轮机、木工机械、后轮、轧钢机辊道子、起重机吊钩、塔吊、精细化工机械、专用车、雷达等各大领域 | ||
电话/微信:138-8949-5179
FAG 23232-E1A-K-M + H2332轴承详细信息
23232-E1A-K-M + H2332轴承是【FAG轴承 > 调心滚子轴承】的型号,主要用在家用电器、燃汽轮机、木工机械、后轮、轧钢机辊道子、起重机吊钩、塔吊、精细化工机械、专用车、雷达等各大领域。
FAG 23232-E1A-K-M + H2332轴承详细参数
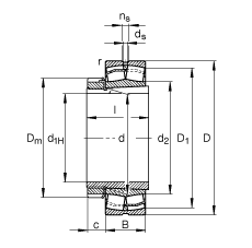
| 参数 | 值 | 备注 |
| d1H | 140 mm | |
| D | 290 mm | |
| B | 104 mm | |
| Ba min | 0 mm | |
| c | 28 mm | |
| D1 | 249,3 mm | |
| Da max | 276 mm | |
| Dm | 210 mm | |
| d | 160 mm | |
| da max | 0 mm | |
| db min | 0 mm | |
| ds | 8 mm | |
| l | 147 mm | |
| ns | 15 mm | |
| ra max | 2,5 mm | |
| rmin | 3 mm | |
| H2332 | 质量,紧定套 | |
| m | 28,5 kg | 质量 |
| m1 | 9,32 kg | 质量,紧定套 |
| Cr | 1460000 N | 基本额定动载荷,径向 |
| e | 0,34 | |
| Y1 | 2 | |
| Y2 | 2,98 | |
| C0r | 1910000 N | 基本额定静载荷,径向 |
| Y0 | 1,96 | |
| nG | 2200 1/min | 极限转速 |
| nB | 1280 1/min | 参考速度 |
| Cur | 146000 N | 疲劳极限载荷,径向 |
FAG 23232-E1A-K-M + H2332轴承尺寸图纸

