轴承专区
Bearings Center
22311-E1-K-T41A + H2311轴承-FAG 22311-E1-K-T41A + H2311轴承尺寸、图纸、价格
FAG 22311-E1-K-T41A + H2311轴承
| 产品名称: | 22311-E1-K-T41A + H2311轴承 | 品牌: | FAG |
|---|---|---|---|
| 类型: | FAG轴承 > 调心滚子轴承 | ||
| 描述: | 22311-E1-K-T41A + H2311轴承是【FAG轴承 > 调心滚子轴承】的型号,主要用在铁路车辆、燃料喷射泵、提升机、齿轮减速装置、轧钢机辊道子、起重机吊钩、冶炼厂、电子、专用车、正面吊等各大领域 | ||
电话/微信:138-8949-5179
FAG 22311-E1-K-T41A + H2311轴承详细信息
22311-E1-K-T41A + H2311轴承是【FAG轴承 > 调心滚子轴承】的型号,主要用在铁路车辆、燃料喷射泵、提升机、齿轮减速装置、轧钢机辊道子、起重机吊钩、冶炼厂、电子、专用车、正面吊等各大领域。
FAG 22311-E1-K-T41A + H2311轴承详细参数
| 参数 | 值 | 备注 |
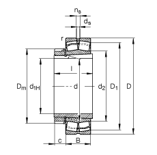
| d1H | 50 mm | |
| D | 120 mm | |
| B | 43 mm | |
| Ba min | 6 mm | |
| c | 13 mm | |
| D1 | 101,4 mm | |
| Da max | 109 mm | |
| Dm | 75 mm | |
| d | 55 mm | |
| d2 | 68,9 mm | |
| da max | 67 mm | |
| db min | 61 mm | |
| ds | 3,2 mm | |
| l | 59 mm | |
| ns | 6,5 mm | |
| ra max | 2 mm | |
| rmin | 2 mm | |
| H2311 | 质量,紧定套 | |
| m | 2,22 kg | 质量 |
| m1 | 0,42 kg | 质量,紧定套 |
| Cr | 265000 N | 基本额定动载荷,径向 |
| e | 0,36 | |
| Y1 | 1,89 | |
| Y2 | 2,81 | |
| C0r | 260000 N | 基本额定静载荷,径向 |
| Y0 | 1,84 | |
| nG | 5600 1/min | 极限转速 |
| nB | 4500 1/min | 参考速度 |
| Cur | 23900 N | 疲劳极限载荷,径向 |
FAG 22311-E1-K-T41A + H2311轴承尺寸图纸

