轴承专区
Bearings Center
21320-E1-K-TVPB + H320轴承-FAG 21320-E1-K-TVPB + H320轴承尺寸、图纸、价格
FAG 21320-E1-K-TVPB + H320轴承
| 产品名称: | 21320-E1-K-TVPB + H320轴承 | 品牌: | FAG |
|---|---|---|---|
| 类型: | FAG轴承 > 调心滚子轴承 | ||
| 描述: | 21320-E1-K-TVPB + H320轴承是【FAG轴承 > 调心滚子轴承】的型号,主要用在仪表、差速器小齿轮轴、纺织机械传动轴、小齿轮轴、破碎机、机床主轴、碾煤机、洗染、挖掘机、钢包回转台等各大领域 | ||
电话/微信:138-8949-5179
FAG 21320-E1-K-TVPB + H320轴承详细信息
21320-E1-K-TVPB + H320轴承是【FAG轴承 > 调心滚子轴承】的型号,主要用在仪表、差速器小齿轮轴、纺织机械传动轴、小齿轮轴、破碎机、机床主轴、碾煤机、洗染、挖掘机、钢包回转台等各大领域。
FAG 21320-E1-K-TVPB + H320轴承详细参数
| 参数 | 值 | 备注 |
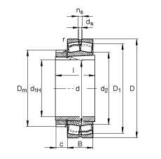
| d1H | 90 mm | |
| D | 215 mm | |
| B | 47 mm | |
| Ba min | 7 mm | |
| c | 20 mm | |
| D1 | 182 mm | |
| Da max | 201 mm | |
| Dm | 130 mm | |
| d | 100 mm | |
| d2 | 132 mm | |
| da max | 131 mm | |
| db min | 108 mm | |
| ds | 4,8 mm | |
| l | 71 mm | |
| ns | 9,5 mm | |
| ra max | 2,5 mm | |
| rmin | 3 mm | |
| H320 | 质量,紧定套 | |
| m | 8,08 kg | 质量 |
| m1 | 1,73 kg | 质量,紧定套 |
| Cr | 495000 N | 基本额定动载荷,径向 |
| e | 0,22 | |
| Y1 | 3,14 | |
| Y2 | 4,67 | |
| C0r | 530000 N | 基本额定静载荷,径向 |
| Y0 | 3,07 | |
| nG | 3600 1/min | 极限转速 |
| nB | 3050 1/min | 参考速度 |
| Cur | 61000 N | 疲劳极限载荷,径向 |
FAG 21320-E1-K-TVPB + H320轴承尺寸图纸

