轴承专区
Bearings Center
21316-E1-K + H316轴承-FAG 21316-E1-K + H316轴承尺寸、图纸、价格
FAG 21316-E1-K + H316轴承
| 产品名称: | 21316-E1-K + H316轴承 | 品牌: | FAG |
|---|---|---|---|
| 类型: | FAG轴承 > 调心滚子轴承 | ||
| 描述: | 21316-E1-K + H316轴承是【FAG轴承 > 调心滚子轴承】的型号,主要用在家用电器、燃汽轮机、压缩机、后轮、造纸机械、石油钻机、塔吊、烟草机械、解体机、雷达等各大领域 | ||
电话/微信:138-8949-5179
FAG 21316-E1-K + H316轴承详细信息
21316-E1-K + H316轴承是【FAG轴承 > 调心滚子轴承】的型号,主要用在家用电器、燃汽轮机、压缩机、后轮、造纸机械、石油钻机、塔吊、烟草机械、解体机、雷达等各大领域。
FAG 21316-E1-K + H316轴承详细参数
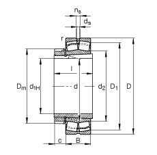
| 参数 | 值 | 备注 |
| d1H | 70 mm | |
| D | 170 mm | |
| B | 39 mm | |
| Ba min | 5 mm | |
| c | 17 mm | |
| D1 | 135,4 mm | |
| Da max | 158 mm | |
| Dm | 105 mm | |
| d | 80 mm | |
| d2 | 99,8 mm | |
| da max | 99 mm | |
| db min | 85 mm | |
| ds | 3,2 mm | |
| l | 59 mm | |
| ns | 6,5 mm | |
| ra max | 2,1 mm | |
| rmin | 2,1 mm | |
| H316 | 质量,紧定套 | |
| m | 2,65 kg | 质量 |
| m1 | 1,04 kg | 质量,紧定套 |
| Cr | 305000 N | 基本额定动载荷,径向 |
| e | 0,22 | |
| Y1 | 3,04 | |
| Y2 | 4,53 | |
| C0r | 325000 N | 基本额定静载荷,径向 |
| Y0 | 2,97 | |
| nG | 4800 1/min | 极限转速 |
| nB | 4050 1/min | 参考速度 |
| Cur | 38500 N | 疲劳极限载荷,径向 |
FAG 21316-E1-K + H316轴承尺寸图纸

